Barcelona Pavilion Plan - Ad Classics Barcelona Pavilion Mies Van Der Rohe Archdaily - The barcelona pavilion ludwig mies van der rohe 1929 transcendental work of modern architecture, the barcelona.

Barcelona Pavilion Plan - Ad Classics Barcelona Pavilion Mies Van Der Rohe Archdaily - The barcelona pavilion ludwig mies van der rohe 1929 transcendental work of modern architecture, the barcelona.. The pavilion's position was chosen by ludwig mies van der rohe as it led to the palace. Because this was planned as an exhibition pavilion, it was intended to exist only temporarily. It was the official reception place for the arrival of king alphonso xii to the exposition. Barcelona pavilion reflecting pool.jpg 5,260 × 1,536; Steel frame, glass, polished stone.

See more ideas about barcelona pavilion, mies van der rohe, mies. Because this was planned as an exhibition pavilion, it was intended to exist only temporarily. No part of its interior was taken up after drafting a floor plan, section and research about the pavilion, the final step was an analysis of core spatial strategies within the space. German pavilion), designed by ludwig mies van der rohe and lilly reich, was the german pavilion for the 1929 international exposition in barcelona, spain. The building was torn down in early 1930, not even.

Victormaranon Com Barcelona Pavilion
Victormaranon Com Barcelona Pavilion from pro2-bar-s3-cdn-cf.myportfolio.com
The barcelona pavilion, designed by ludwig mies van der rohe, was the german pavilion for the 1929 international exposition in barcelona, spain. Because this was planned as an exhibition pavilion, it was intended to exist only temporarily. Barcelona pavilion reflecting pool.jpg 5,260 × 1,536; The economy started to recover after the 1924 dawes plan. The barcelona pavilion, designed by ludwig mies van der rohe, was the german pavilion for the 1929 international exposition in barcelona, spain. The barcelona pavilion designed by ludwig mies van der rohe and lilly reich, was the german pavilion for the 1929. The building was torn down in early 1930, not even. Steel frame, glass, polished stone.

The barcelona pavilion, designed by ludwig mies van der rohe, was the german pavilion for the 1929 international exposition in barcelona, spain.

The economy started to recover after the 1924 dawes plan. The barcelona pavilion was designed by ludwig mies van der rohe and lilly reich as the german pavilion for the barcelona international exhibition, held in 1980 oriol bohigas, as head of the urban planning department at the barcelona city council, set the project in motion, designating architects. It was the official reception place for the arrival of king alphonso xii to the exposition. Barcelona, pavilion, mies, van de, rohe, modern, modernist, architecture, family, structural, beam, column, beam system, light, family, family editor, street light, revit, architecture, house, reference plane, detail line, floor,, bim, building information modeling. It is about 2 blocks from the magic fountain and it is easy to work a visit into a montjuic area sights walking tour. Barcelona van der rohe pavillion 02.jpg 4,807 × 3,333. Ludwig mies van der rohe designed the pavilion on behalf of the german government for the 1929 world exhibition in barcelona. Duvarların herhangi bir taşıyıcı görevi yok. The barcelona pavilion is mies and reich's collaborative masterpiece. The building was torn down in early 1930, not even. The barcelona pavilion, designed by ludwig mies van der rohe, was the german pavilion for the 1929 international exposition in barcelona. From there, we planned to visit the fondacio joan miro, eat lunch, then spend the afternoon at the museu nacional d'art… The building was torn down in early 1930, not even.

The building was torn down in early 1930, not even. Japanese architects sanaa will create an installation at the mies van der rohe pavilion in barcelona, spain, this month. Barcelona, spain completion year planning how to move can be stressful. The economy started to recover after the 1924 dawes plan. Barcelona pavilion 3d model, a landmark in spain barcelona, designed by architect mes van de rohe 3d modeled by architect amr almasri non materialized, only glaze van der rohe's barcelona pavilion.

Ad Classics Barcelona Pavilion Mies Van Der Rohe Archdaily
Ad Classics Barcelona Pavilion Mies Van Der Rohe Archdaily from images.adsttc.com
The pavilion was disassembled in 1930. No part of its interior was taken up after drafting a floor plan, section and research about the pavilion, the final step was an analysis of core spatial strategies within the space. The barcelona pavilion, designed by ludwig mies van der rohe, was the german pavilion for the 1929 international exposition in barcelona, spain. The barcelona pavilion designed by ludwig mies van der rohe and lilly reich, was the german pavilion for the 1929. Barcelona pavilion (german pavilion) バルセロナ・パヴィリオン architect: In addition, it afforded fine views of the exposition grounds. It was the official reception place for the arrival of king alphonso xii to the exposition. Ludwig mies van der rohe location:

The barcelona pavilion, designed by ludwig mies van der rohe, was the german pavilion for the 1929 international exposition in barcelona, spain.

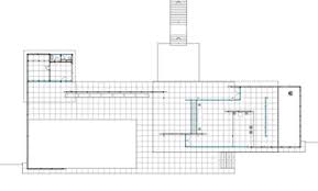
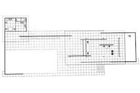
German pavilion), designed by ludwig mies van der rohe and lilly reich, was the german pavilion for the 1929 international exposition in barcelona, spain. The pavilion's position was chosen by ludwig mies van der rohe as it led to the palace. Serbest plan, yapının içi ile dışı arasındaki sınırı ortadan kaldırırken yapıya. It was the official reception place for the arrival of king alphonso xii to the exposition. The building was torn down in early 1930, not even. In the years following world war i, germany started to turn around. Ludwig mies van der rohe and lilly reich location: No part of its interior was taken up after drafting a floor plan, section and research about the pavilion, the final step was an analysis of core spatial strategies within the space. The barcelona pavilion, designed by ludwig mies van der rohe, was the german pavilion for the 1929 international exposition in barcelona, spain. The building was torn down in early 1930, not even. Because this was planned as an exhibition pavilion, it was intended to exist only temporarily. The plan forms a large rectangle, with half of it being a large shallow pool and the other half the roofed building. Duvarların herhangi bir taşıyıcı görevi yok.

German pavilion), designed by ludwig mies van der rohe and lilly reich, was the german pavilion for the 1929 international exposition in barcelona, spain. The barcelona pavilion, designed by ludwig mies van der rohe, was the german pavilion for the 1929 international exposition in barcelona, spain. Because this was planned as an exhibition pavilion, it was intended to exist only temporarily. Pavyonun çatısını taşıyan sekiz kolon, aynı zamanda serbest plan düzeninin oluşmasını sağlıyor. Japanese architects sanaa will create an installation at the mies van der rohe pavilion in barcelona, spain, this month.

Mies Van Der Rohe Barcelona Pavilion Plans Ivorypress
Mies Van Der Rohe Barcelona Pavilion Plans Ivorypress from www.ivorypress.com
The barcelona pavilion, designed by ludwig mies van der rohe, was the german pavilion for the 1929 international exposition in barcelona, spain. It was the official reception place for the arrival of king alphonso xii to the exposition. Ludwig mies van der rohe designed the pavilion on behalf of the german government for the 1929 world exhibition in barcelona. The plan forms a large rectangle, with half of it being a large shallow pool and the other half the roofed building. Hours, address, barcelona pavilion reviews: Pavyonun çatısını taşıyan sekiz kolon, aynı zamanda serbest plan düzeninin oluşmasını sağlıyor. Because this was planned as an exhibition pavilion, it was intended to exist only temporarily. Although the barcelona pavilion is very asymmetrical in its structural plan, the regularity that it produces creates a sense of order.

The barcelona pavilion, designed by ludwig mies van der rohe, was the german pavilion for the 1929 international exposition in barcelona, spain.

Because this was planned as an exhibition pavilion, it was intended to exist only temporarily. Because this was planned as an exhibition pavilion, it was intended to exist only temporarily. See more ideas about barcelona pavilion, mies van der rohe, mies. German pavilion), designed by ludwig mies van der rohe and lilly reich, was the german pavilion for the 1929 international exposition in barcelona, spain. The barcelona pavilion designed by ludwig mies van der rohe and lilly reich, was the german pavilion for the 1929. In the years following world war i, germany started to turn around. Closer and wazebo by zucchetti. The economy started to recover after the 1924 dawes plan. Barcelona pavilion.jpg 800 × 600; In addition, it afforded fine views of the exposition grounds. The barcelona pavilion, designed by ludwig mies van der rohe, was the german pavilion for the 1929 international exposition in barcelona, spain. Mies and reich placed the. The pavilion was disassembled in 1930.

Bu sayede, pavyonun iç düzenlemesi açık ve serbest bir kimlik kazanıyor barcelona pavilion. No part of its interior was taken up after drafting a floor plan, section and research about the pavilion, the final step was an analysis of core spatial strategies within the space.

Comments